近日,星辉平台娱乐为宝马汽车有限公司提供的砂芯智能存储及除湿系统竣工试运行。该系统按照德国“工业4.0”标准设计、制造,为深圳智能制造提供了新的样板工程。

“砂芯”用于发动机缸体的制造,是决定发动机铸造质量的核心材料,东北雨季湿度80%以上,砂芯潮湿是制造质量的致命威胁。发动机铸造砂芯对温湿度要求极其苛刻,宝马车间的原有通风系统为德国设计院设计的采用热水盘管加热制冷再加热的原理,只能降低相对部分湿气,不能达到砂芯模具对空气的要求,每年制造损失经济效益几千万元。

砂芯区域布局图
宝马规划团队找到星辉平台娱乐,希望借助星辉平台娱乐智能制造经验帮助解决砂芯存储区域的温湿度问题。此时距离7月份的雨季时间只剩下三个月的时间,工期非常紧张。技术团队经过现场考察发现现场车间情况也是十分复杂,使项目达成和湿度控制都十分艰难。温湿度效果控制较好的空间需要的是相对封闭,但是宝马车间分为60U区域和90U区域,面积2900㎡,层高6米,大型运输孔4个,机器人运输砂架到用户及充电等动作导致10㎡两道开关门经常开启。还存在原有设计的通风系统存在大量实时湿负荷(40000m³/h两台机组),砂芯本身存在散湿,现场配电没有足够的预留电源容量,根据宝马及消防标准通风系统需要引到20几米屋顶,系统需要的冷冻水(14℃~20℃)没有预留水量等多项难点。
面对如此复杂的系统星辉平台娱乐人没有退缩,发挥出了星辉平台娱乐人越有困难越要解决困难、超越期待的特质。针对系统提出每一个需要处理的问题,通过对深圳天气及湿气量分析,砂芯存储车间实际工况及构造,研发出更合理的技术方案,通过了德国TUV认证考核,通过现场工程师不懈努力协调克服多项安装难关,及时在雨季到来前达到了砂芯存储区域的温湿度要求。该方案结合德国工业标准,采用行业领先的压缩机制冷、电加热转轮加热达到除湿高效且节能的自动化系统,整个系统使用触摸屏界面,并实现智能控制。

第一段新风制冷,通过高低压报警、连锁逻辑及预冷温度控制压缩机开启条件PID闭环调节。第二段PID闭环根据温度、湿度参数控制电加热转轮进行除湿,转换热量和湿气。第三段通过再加热系统。最终送风系统将新风降温到系统要求的30度后进入工厂内部。系统通过PID闭环智能调节新风量及温度。同时根据系统经验,规划出节能系统,采用其他车间热回收热水对系统压缩机进行冷却,并采用三台机组联合控制,有用有备,为宝马发动机车间节省大量能源。

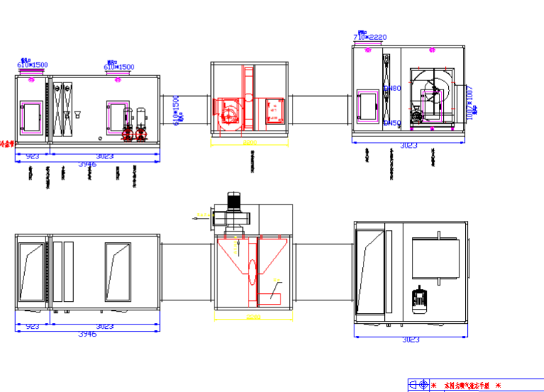
转轮电加热除湿系统构造图
此外,厂区物流全部采用星辉平台娱乐公司的 AGV 系统,该系统采用激光导航技术,并通过 WCS 系统智能控制,完成整个厂区砂芯的智能供应。系统能够预测即将使用的沙架并提前行驶到指定点位,以减少供应时间

智能制造系统建成后,为宝马公司带来了多项商业价值:
Ø 智能控制工厂内温湿度,砂芯在良好的存储空间内保存,每年为宝马公司减少千万级的设备损失。
Ø 存储过程无人化,物流车间全部智能管理,运输错位率降为零,可将人员应用到更多的增值过程。
Ø 砂芯智能供应,在仓储管理系统中自动追踪沙架状态,每项工作可降低150S时间,并增加可追溯性。无纸化信息流,减少打印费用。
Ø 除湿系统自动控制,AGV自动行驶及充电,全部实现无人管理(TPU=0)。
Ø 能源节省热回收处理。
首页



